Tous
Location
Murs commerciaux
Cession Droit Au Bail
CHATEAUROUX (36044)
175 m²Local Commercial Centre Ville - Chateauroux (36)
4200€ HT / mois
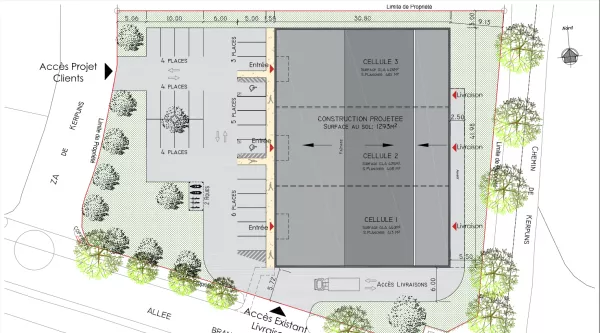
Dol de Bretagne (35120)
400 m²Local Commercial neuf - Dol de Bretagne (35)
3330€ HT / mois
SAINT-MALO (35400)
86 m²Local Commercial Galerie marchande
135 000€ HT
4408€ HT / mois
SAINT-MALO (35400)
51 m²Local Commercial - Saint-Malo Secteur Gare (35)
1295€ HT / mois
Pontivy (56300)
75 m²Cession Droit Au Bail - Pontivy (56)
50 000€ HT
1440€ HT / mois
SAINT-MALO (35400)
140 m²Local Commercial - Saint-Servan - Saint-Malo (35)
90 000€ HT
1350€ HT / mois
Saint Etienne (42000)
660 m²Local Commercial - Saint-Etienne (42)
320 000€ HT
5700€ HT / mois
Saint Malo (35400)
98 m²Fonds de Commerce restauration - Saint-Malo (35)
120 000€ HT
1400€ HT / mois
Avranches (50300)
48 m²Local Commercial Avranches Centre Ville
50 000€ HT
1500€ HT / mois
Vous avez un bien commercial à vendre ou à louer ?
Déposer une annonce
